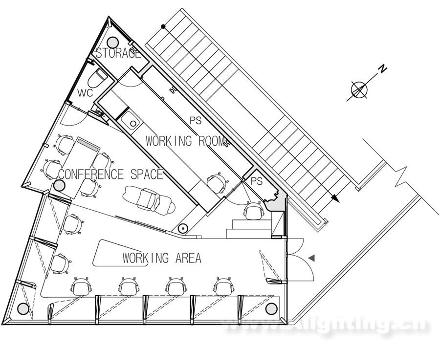
摘要:本案例為“ippin dental laboratory”,是東京首個推行定制服務的牙科診所。建築位於繁華時髦的東京都港區,原本的用途是商業店鋪,建築立面上安裝了巨大的玻璃幕牆。 takato tamagami architectural design設計的這個單層改造項目為室內空間提供了必要的私密性,遮擋並減輕了玻璃幕牆中透出的強烈陽光。設計師利用隔牆來實現這一效果——在每個進行精密工作的工作台中,頂部牆面都被彎曲,既遮擋了陽光直射,又能阻擋來自其它相鄰建築的視線乾擾。室內佈局同時考慮到了幕後準備空間和牙醫與病人直接接觸的公共區域。為了節省預算,許多建造方式都經過測試驗證。最後,設計師和業主決定啟用一家手工藝術品製造商來進行施工。其中的照明設計值得鑑賞!




















via Alighting

請先 登入 以發表留言。